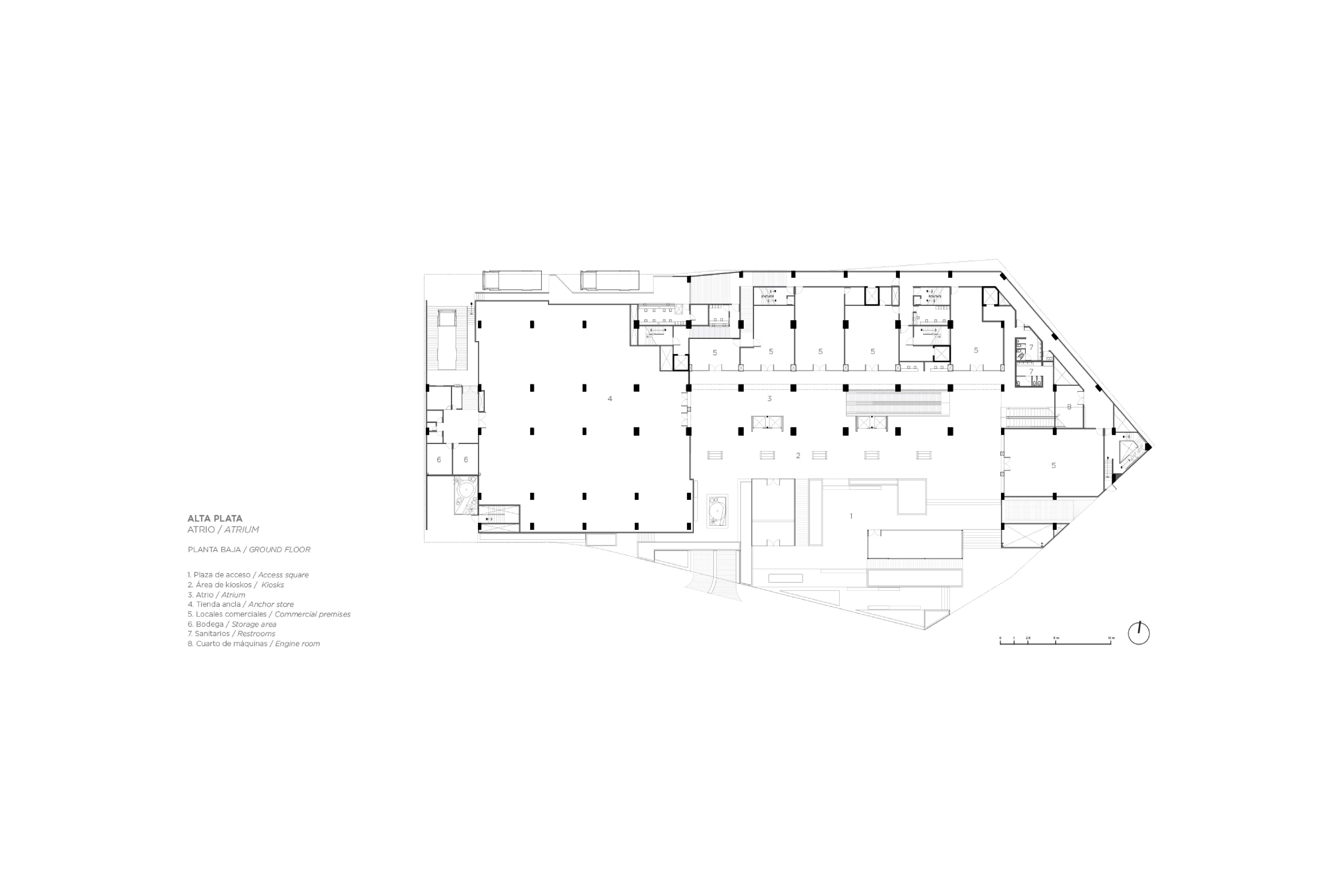
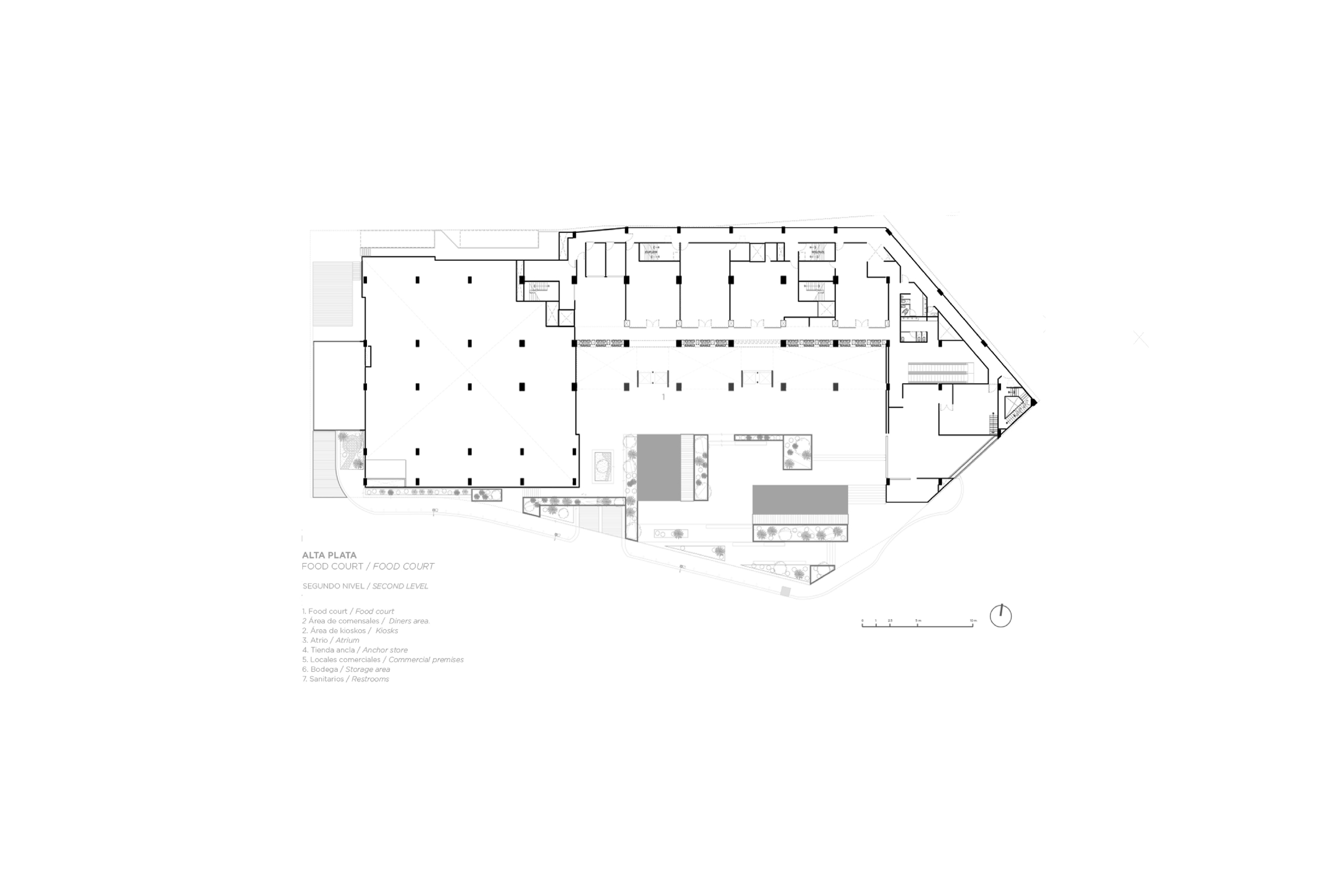
ALTA PLATA
Alta Plata es un desarrollo de uso mixto que tiene como objetivo crear un nuevo enfoque de diseño comercial a través de una cuidadosa planificación y curación de estilo de vida, trabajo, entretenimiento y desarrollo en un entorno holístico.
El surgimiento de una idea tomando como base la minería de la localidad de Pachuca de Soto, establece en el proyecto una sinergia y combina los componentes de infraestructura, urbanismo, paisaje y espacio público.
Las principales ramas de uso del desarrollo contemplan hotel, oficina y comercio, con la finalidad de aumentar el indicativo económico de la zona. Esta tipografía se ha planteado como una estrategia de costura entre escalas urbanas muy diferenciadas; una medición entre edificios y grandes superficies.
Dada la configuración del terreno, y con el objetivo de aprovechar al máximo su potencial, la planta se configura a partir de una geometría irregular, compuesta por polígonos rectangulares conectados transversalmente por varios núcleos, los cuales dan origen a una volumetría dinámica, logrando la apariencia de dos cuerpos, dos volúmenes que se intersectan.
Como estrategia de una mejor esbeltez visual de los dos volúmenes, se proyecta una repetición de columnas verticales, que abrazan un volumen elevado mejorando el carácter del edificio y creando una apariencia diferente según el punto de vista del espectador.
Artículos relacionados: ¿Cómo elegir el proyecto más rentable para un desarrollo inmobiliario?








